まちづくりカンパニーTOP > (マンション(売買))地域から探す > 岡山市北区 > グレースタワーⅢ > 物件詳細
| 所在階 | 価格 | 管理費 | 間取り | 専有面積 | 詳細 | 検討リスト |
|---|---|---|---|---|---|---|
| 13 | 8,480万円 | 13,650円 | 3LDK | 91.57㎡ | 詳細を見る | 追加する |










(※元利均等方式 金利5.00%まで ※返済年数5~50年まで入力できます)
(※ボーナスは年2回で計算しています。1000万円まで入力できます)
(※物件購入時、その他諸費用が発生する場合がございます)
| 所在地 | 岡山県岡山市北区中山下1丁目1 | ||
|---|---|---|---|
| 交通 | |||
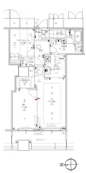
| 間取り/詳細 | 2LDK | ||
| 専有面積/バルコニー面積 | 65.91㎡/11.24㎡ | ルーフバルコニー面積/テラス面積/専用庭面積 | -/-/- |
| 価格 | 4,980万円 | ||
| 管理費 | 9,820円 | ||
| 修繕積立金 | 10,880円 | 修繕積立基金 | - |
| 権利金 | - | 駐車場/月額料金 | 空有/16,000円 |
| 土地の敷金/保証金 | -/- | 借地料/借地期間 | -/- |
| 土地権利 | 所有権 | 国土法届出要否 | 不要 |
| 用途地域 | - | 地勢 | - |
| 種別/構造 | 中古マンション/鉄筋コンクリート | 向き | 西 |
| 築年月(築年数) | 2019年 1月 (築7年) | ||
| 所在階/階建 | 8階/21階建 | 棟総戸数/販売戸数 | -/- |
| 管理組合有無 | - | 管理形態 | 管理会社に全部委託 |
| 管理員の勤務形態 | 日勤 | 管理会社 | - |
| 取引態様 | 専属専任媒介 | 現況 | 空家 |
| 引渡し | 相談 | 建築確認番号 | - |
| 物件番号 | 99221345 | 取引条件の有効期限 | 2026年02月04日 |
| 設備条件 |
|
||
| 取扱会社 |
|
||
| QRコード |
このQRコードを読み取ることで、スマホでも物件情報を確認できます。 |
||
※地図上に表示される物件の位置は付近住所に所在することを表すものであり、実際の物件所在地とは異なる場合がございます。